最常用的浴室柜设计图
随着现代人们对整洁度和美观度的追求,浴室柜从“洗浴架、柱盆”,发展成多功能性浴室柜设计,不仅提高了美观性,而且增加了更多实用性功能性的设计,让使用者的生活为加便利。
浴室柜主要组成:洗脸盆、台面、柜子、镜子(镜柜)组成。目前市面上常见有台上盆、台下盆的不同类型洗手盆浴室柜。
浴室柜加镜柜主要功能:洗漱、吹发、女性化妆卸妆、男性刮胡子、储物等功能。
现代的镜柜都是带抽纸口、防雾镜、镜前灯更现代的镜柜还带温度时间显示。
下面由华建工艺学会、华建环境设计研究所为设计师们讲解下浴室柜合理设计及相关的注意事项,跟着华建学设计。

△浴室柜主要组成部分(一)

△浴室柜主要组成部分(二)

△抽纸口

△抽纸口

△智能多功能镜柜
▷目录
1、浴室柜尺寸指引
2、浴室柜常用设计图
3、浴室柜设计注意事项
4、浴室柜实景图参考
1、浴室柜尺寸指引
▶ 1.1 浴室柜常见的电器设备及存放物品:
牙刷、杯具、吹风机、洗脸巾、抽纸、刮胡刀、洗护用户、清洁用品、消毒用品、化妆用品、扫地机器人、脏衣篮。
柜子层板最好做活动板,可以调节高度,方便长度不一的物品储藏。

△浴室柜储物

△浴室柜储物

△浴室柜储物
▶ 1.2 浴室柜尺寸设计:
浴室柜深度:550~600mm;
浴室柜高度:浴室柜最佳高度=身高÷2+5;
浴室柜宽度:单人洗手台标准宽度尺寸为 800~1000mm;
镜柜离台面尺寸:300~350mm;
镜柜深度:130~140mm;
镜柜高度:600~800mm;
台盆深度:200~250mm;
悬挂柜底部离地:250~300mm;
镜柜做三七分,避开常用区域,最宽不超过60CM,最窄小于20CM。

△浴室柜常见的尺寸设计
最佳高度洗手台高度宜为:
=身高÷2+5。

△引发腰椎劳损的原因是长期积累
2、浴室柜常用设计图
浴室柜安装方式类型有:悬挂柜、落地柜。
浴室柜台面盆类型有:台上盆、台下盆、一体式、定制设计。
--(一)悬挂柜 --
浴室悬挂柜:底部为悬空,靠与墙面连接的部件支撑。这种安装整体空间更透气,无卫生死角,更好打理。


△悬挂柜台下盆(一)

△悬挂柜台上盆(二)

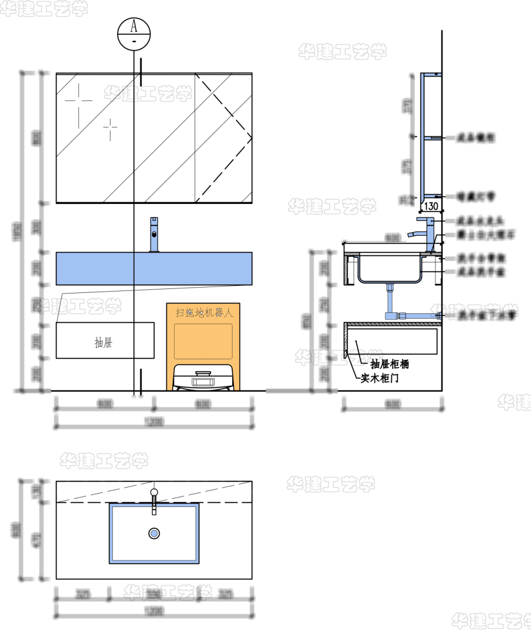
△悬挂柜台下盆带拖扫地机器人(三)

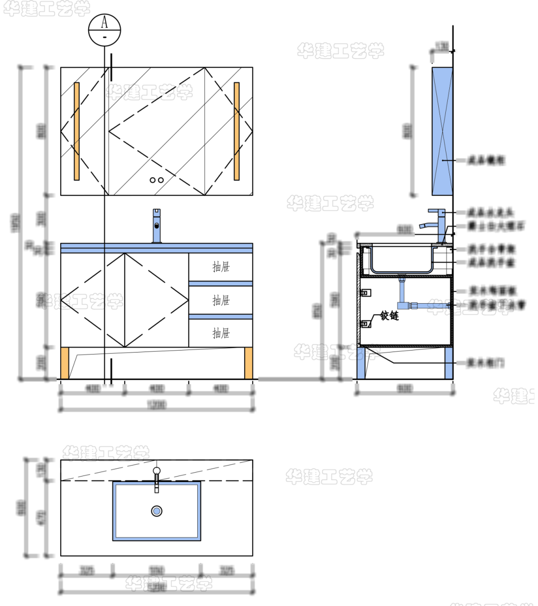
△悬挂柜台下盆带洗衣机(四)
--(二)落地柜 --
浴室落地柜:底部落地,靠地面支撑。储物空间大,有卫生死角,容易受潮。


△落地式台下盆(一)

△落地式台上盆(二)
--(三)极窄浴室柜 --
空间小,无法满足浴室柜正常尺寸时,宜在设计上做取舍。


△极窄浴室柜(一)

△极窄浴室柜(二)
3、浴室柜设计注意事项
浴室柜设计细节:
1、选镜柜设计,不选单纯镜子;
2、选优质五金带阻尼的,不选普通五金;
3、龙头选可抽拉式,不选固定;
4、选除雾镜,不选普通镜子;
5、选多层实木、铝合金,不选颗粒板;
6、选抽屉式,不选平开式。

△选镜柜设计,不选单纯镜子

△选优质五金带阻尼的,不选普通五金

△龙头选可抽拉式,不选固定

△选除雾镜,不选普通镜子

△选多层实木、铝合金,不选颗粒板

△选抽屉式,不选平开式
4、浴室柜实景图参考

本文链接:http://www.arway.cn/?id=246 转载需授权!
目录 返回
首页